
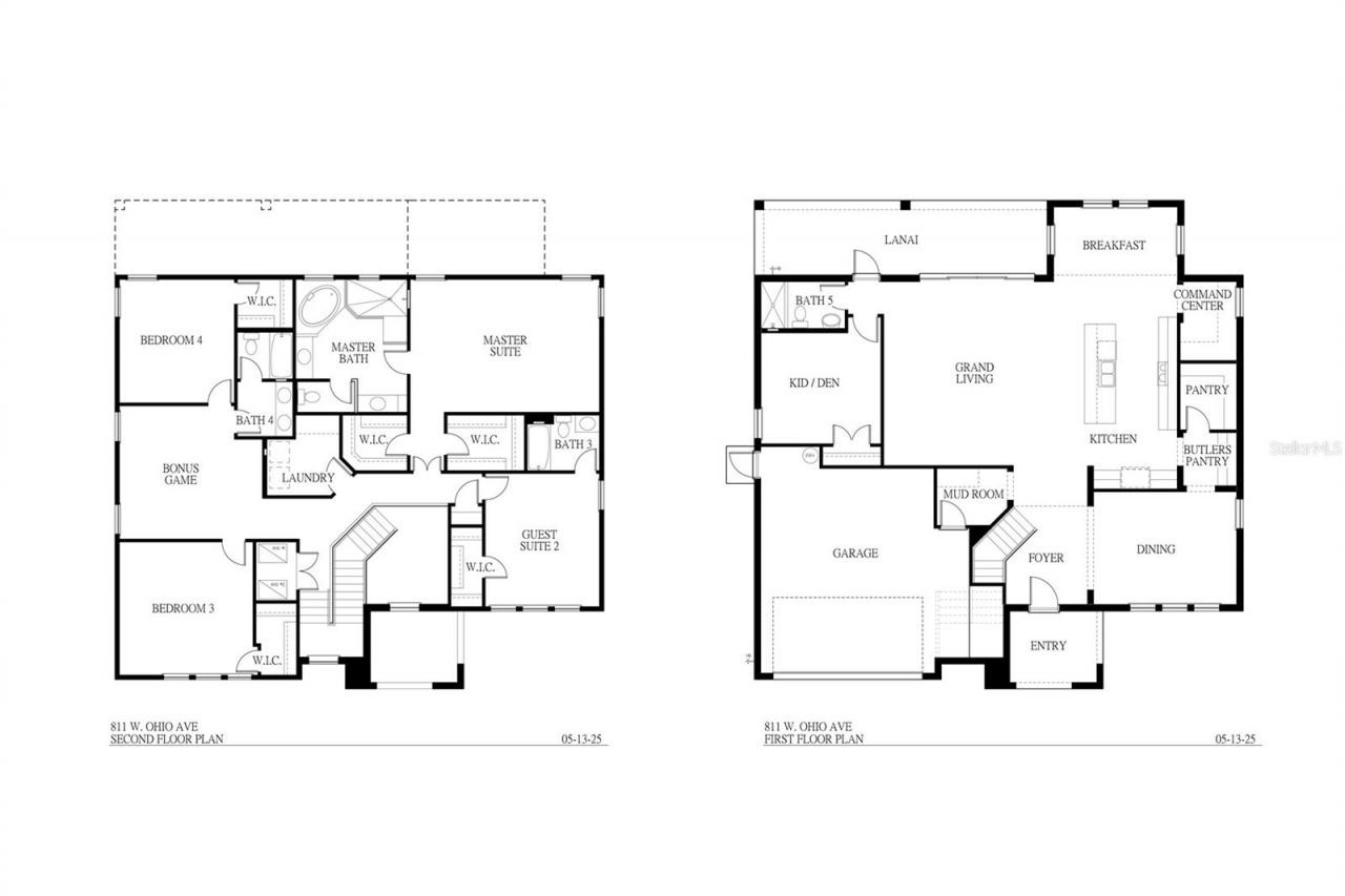
Under contract-accepting backup offers. Under Construction. It won't be long now! We are at finished drywall stage and moving along at a fast clip! Another exquisite top quality home by Mobley Homes Custom is coming to the highly sought after neighborhood of Riverside Heights! This executive home sits on a LARGE LOT measuring 75x130 and will overlook an original charming brick street. A paver driveway greets you as you arrive. Once inside this beauty you will step into a grand foyer that opens u...Under contract-accepting backup offers. Under Construction. It won't be long now! We are at finished drywall stage and moving along at a fast clip! Another exquisite top quality home by Mobley Homes Custom is coming to the highly sought after neighborhood of Riverside Heights! This executive home sits on a LARGE LOT measuring 75x130 and will overlook an original charming brick street. A paver driveway greets you as you arrive. Once inside this beauty you will step into a grand foyer that opens up to a magnificent great room with an open floorplan. Your gorgeous designer kitchen overlooks all of the action and it features a HUGE ISLAND, GE Cafe Appliances and SPACIOUS WALK IN PANTRY. Access your beautiful formal dining room through a BUTLER'S PANTRY off the kitchen. Also right off the kitchen is your very own Command Center. Entertain all of your guests here with style and ease as they enjoy lovely views through the large glass sliders looking out onto your covered lanai and backyard. Engineered hardwood floors cover the first floor, stairs and upstairs hall and 5 crown molding tops off the high ceilings on the first floor. There are many upgraded finishes throughout this stunning home! Look book coming soon. This cozy neighborhood is just minutes away from Armature Works, the sparkling Riverwalk, Downtown and Tampa International Airport. NO FLOOD ZONE!!
View MoreCourtesy of
Agency Name: COMPASS FLORIDA LLC
Agency Contact: (305) 851-2820
Agent Name: Leslie Sibbitt
Presented by
Agency Title: The Keyes Company
Agency Phone:
Request Info
Send an email with a link to
811 W Ohio Avenue, Tampa, FL 33603.
Email 811 W Ohio Avenue, Tampa, FL 33603
Thank you for your inquiry! As a thank you, we have a Special Mortgage Offer for You.
We would like to provide you a free, no-obligation, home loan pre-approval review.