
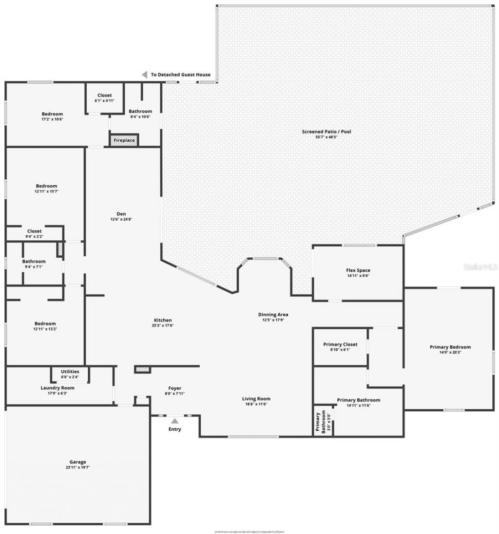
Under contract-accepting backup offers. Welcome to your private slice of paradise in the quiet ORONOQUE neighborhood-a spacious 4/3/2 pool home on 1 beautifully landscaped acre, complete with a fully furnished detached 1/1 apartment with its own address, perfect for guests or family.Step inside to an inviting layout centered around a stunning kitchen with a huge island overlooking the family and dining rooms. Enjoy cozy evenings by the wood-burning fireplace or open the sliding doors to connect ...Under contract-accepting backup offers. Welcome to your private slice of paradise in the quiet ORONOQUE neighborhood-a spacious 4/3/2 pool home on 1 beautifully landscaped acre, complete with a fully furnished detached 1/1 apartment with its own address, perfect for guests or family.Step inside to an inviting layout centered around a stunning kitchen with a huge island overlooking the family and dining rooms. Enjoy cozy evenings by the wood-burning fireplace or open the sliding doors to connect seamlessly to the screened pool and spa. The expansive master suite features two walk-in closets, French doors to the pool, and a spa-like bath with a double marble vanity, garden tub, and tiled double shower with bench.The property is fully fenced with two gates and a circular driveway, offering excellent parking options including space for an RV.Recent upgrades provide worry-free living: updated HVAC system with new insulation and ductwork, 2024 gutters, 2024 electrical panel and exterior lighting, 2024 pool lighting and heater, and freshly renovated and painted main home. The apartment was renovated in 2022.Ideally located near shopping, dining, parks, medical facilities, and everything Ocala has to offer-this home delivers the perfect balance of tranquility and convenience.
View MoreCourtesy of
Agency Name: ASSET CAPITAL REALTY, LLC
Agency Contact: 352-438-0030
Agent Name: Thomas Haitsch
Presented by
Agency Title: The Keyes Company
Agency Phone:
Request Info
Send an email with a link to
5520 NE 2nd Lane, Ocala, FL 34470.
Email 5520 NE 2nd Lane, Ocala, FL 34470
Thank you for your inquiry! As a thank you, we have a Special Mortgage Offer for You.
We would like to provide you a free, no-obligation, home loan pre-approval review.