
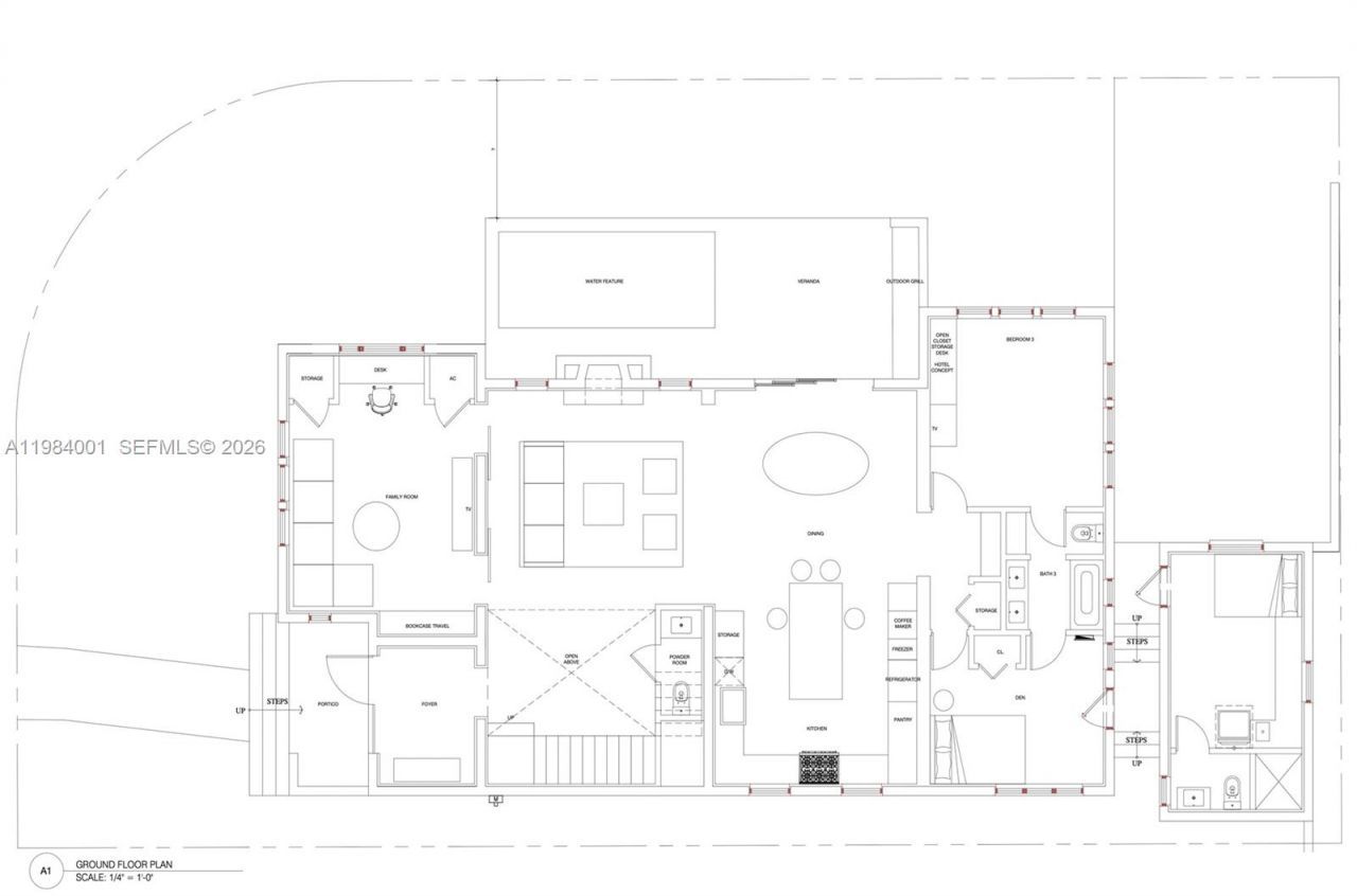
Build your dream home in Historic Buena Vista, just steps from the world-renowned Miami Design District. Situated on a prime corner lot, the existing home has already been stripped to the studs, offering a valuable head start for redevelopment. Included in the sale are draft architectural plans, renderings, and a survey for a modern two-story residence featuring 4 bedrooms, 3.5 bathrooms, and 3,904 sq ft of total living space?including a detached 232 sq ft casita complete with a full bathroom an...Build your dream home in Historic Buena Vista, just steps from the world-renowned Miami Design District. Situated on a prime corner lot, the existing home has already been stripped to the studs, offering a valuable head start for redevelopment. Included in the sale are draft architectural plans, renderings, and a survey for a modern two-story residence featuring 4 bedrooms, 3.5 bathrooms, and 3,904 sq ft of total living space?including a detached 232 sq ft casita complete with a full bathroom and kitchen. The design also includes two off-street parking spaces and a pool, all set on a 5,500 sq ft lot. Enjoy exceptional walkability to Miamis finest luxury shopping, dining, and art galleries, with convenient access to Midtown, Wynwood, Miami Beach, and Miami International Airport.
View MoreCourtesy of
Agency Name: Douglas Elliman
Agency Phone: 305-695-6300
Agent Name: Todd Finlay
Presented by
Agency Title: The Keyes Company
Agency Phone:
Request Info
Send an email with a link to
4400 NE 1st Ave , Miami, FL 33137.
Email 4400 NE 1st Ave , Miami, FL 33137
Thank you for your inquiry! As a thank you, we have a Special Mortgage Offer for You.
We would like to provide you a free, no-obligation, home loan pre-approval review.