
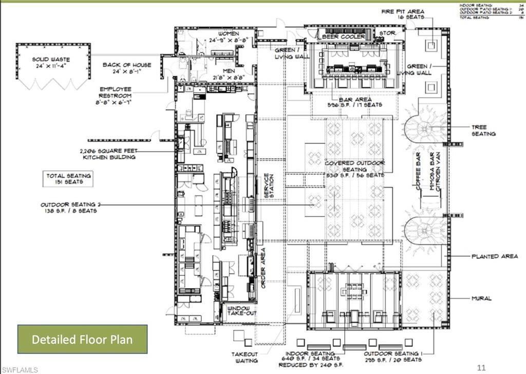
Prime Bonita Beach Road Restaurant & Bar Opportunity – Steps from the Gulf! Unlock your culinary vision with this premium commercial restaurant and bar property on highly desirable Bonita Beach Road, just 3 minutes from the Gulf of America and within walking or biking distance to the beach. Situated on 2.23 acres, this property offers flexible open-concept space, delivered as a complete shell with substantial electrical improvements and a layout designed for a state-of-the-art kitchen. Th...Prime Bonita Beach Road Restaurant & Bar Opportunity – Steps from the Gulf! Unlock your culinary vision with this premium commercial restaurant and bar property on highly desirable Bonita Beach Road, just 3 minutes from the Gulf of America and within walking or biking distance to the beach. Situated on 2.23 acres, this property offers flexible open-concept space, delivered as a complete shell with substantial electrical improvements and a layout designed for a state-of-the-art kitchen. The property’s versatile design supports a range of concepts—from a coastal-inspired casual restaurant and bar to a high-end dining destination. An expansive outdoor seating area enhances the indoor-outdoor flow, perfect for year-round Florida dining and entertaining. Key Features & Investment Highlights, Prime Gulf Coast location on Bonita Beach Road, minutes from the beach. 2.23-acre lot with room for outdoor dining, events, or future expansion. Open-concept shell ready for customization, including a future gourmet kitchen. Substantial electrical improvements already in place. Ideal for restaurant operators, hospitality investors, or concept developers seeking high-traffic, high-visibility space. With its unbeatable location, generous size, and versatile layout, this property is ready to become Bonita’s next dining and entertainment hotspot. Don’t miss this once-in-a-lifetime opportunity to establish your restaurant or bar in one of Southwest Florida’s most sought-after coastal locations.
View MoreCourtesy of
Agency Name: Coldwell Banker Realty
Agency Phone: 239-262-7131
Agent Name: Tyler Macchi
Presented by
Agency Title: The Keyes Company
Agency Phone:
Request Info
Send an email with a link to
3601 Bonita Beach Rd Sw, Bonita Springs, FL 34134.
Email 3601 Bonita Beach Rd Sw, Bonita Springs, FL 34134
Thank you for your inquiry! As a thank you, we have a Special Mortgage Offer for You.
We would like to provide you a free, no-obligation, home loan pre-approval review.