
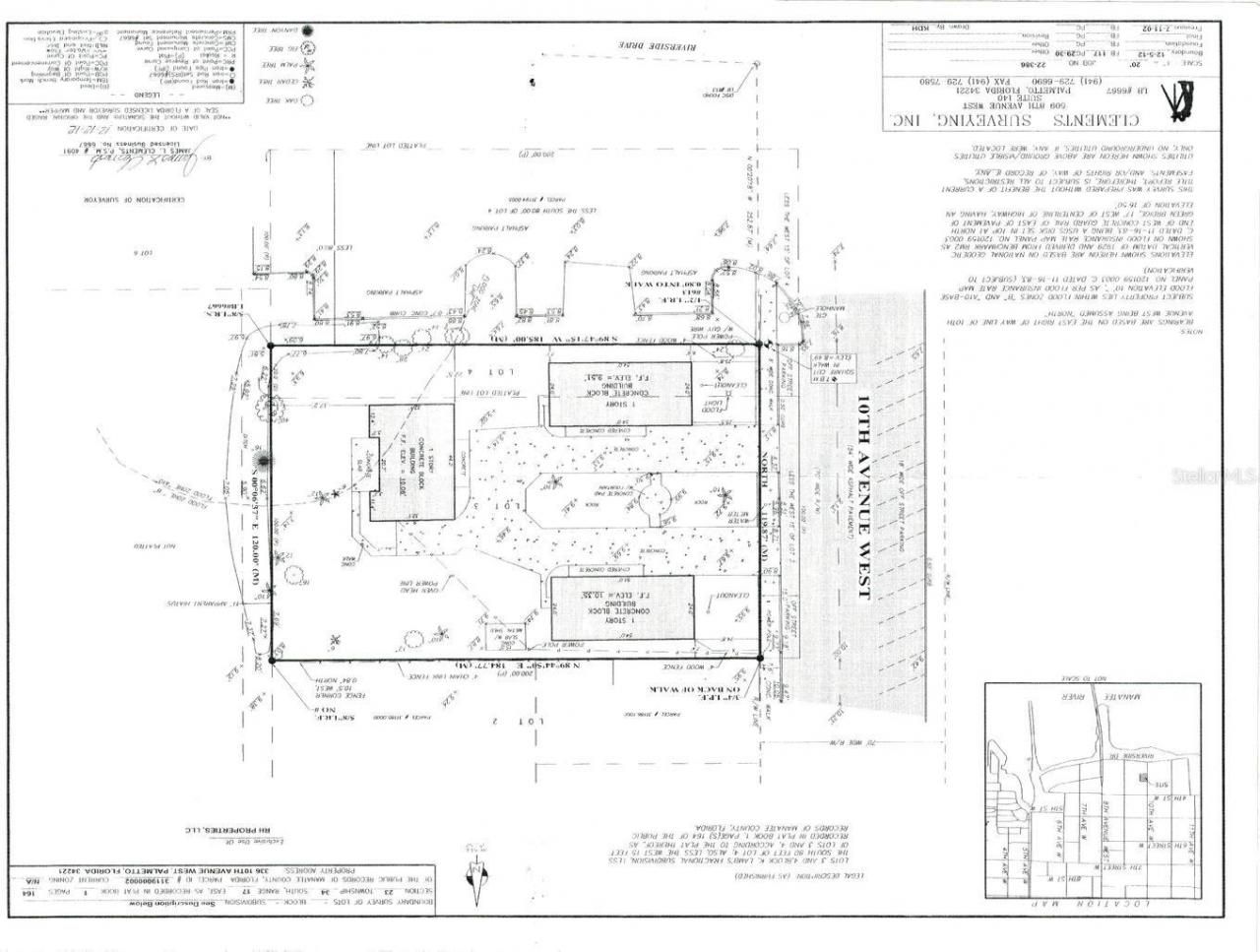
This property has the potential to have water views of Manatee River. Close to the Palmetto Marina and Riverwalk in downtown Bradenton. This area is up and coming. Owner has drawing for 3 story condo/apartments with 17 units. This property previously had 3 motels. Property has water electric.
Courtesy of
Agency Name: RE/MAX ALLIANCE GROUP
Agency Contact: 941-360-7777
Agent Name: Lily Behrends
Presented by
Agency Title: The Keyes Company
Agency Phone:
Request Info
Send an email with a link to
336 W 10th Avenue, Palmetto, FL 34221.
Email 336 W 10th Avenue, Palmetto, FL 34221
Thank you for your inquiry! As a thank you, we have a Special Mortgage Offer for You.
We would like to provide you a free, no-obligation, home loan pre-approval review.