
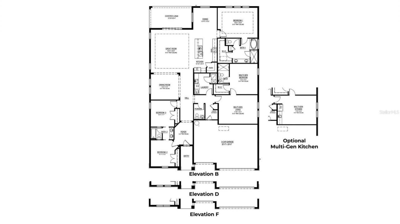
Under Construction. This one-story, all concrete block constructed home has a truly open concept plan, featuring a large great room, separate dining room, and well-appointed kitchen with dining area, all overlooking a covered lanai. This single-story plan features two bedrooms at the front of the home which shares a jack-and-jill full bathroom, as well as a multi-gen living space past the powder bath and laundry room. The owner's suite is located at the back of the home for privacy, offering bea...Under Construction. This one-story, all concrete block constructed home has a truly open concept plan, featuring a large great room, separate dining room, and well-appointed kitchen with dining area, all overlooking a covered lanai. This single-story plan features two bedrooms at the front of the home which shares a jack-and-jill full bathroom, as well as a multi-gen living space past the powder bath and laundry room. The owner's suite is located at the back of the home for privacy, offering beautiful views of the backyard. Pictures, photographs, colors, features, and sizes are for illustration purposes only and will vary from the homes as built. Home and community information including pricing included features, terms, availability, and amenities are subject to change and prior sale at any time without notice or obligation.
View MoreCourtesy of
Agency Name: D.R. HORTON REALTY OF SARASOTA
Agency Contact: 941-256-7010
Agent Name: Sarah Bordeaux
Presented by
Agency Title: The Keyes Company
Agency Phone:
Request Info
Send an email with a link to
320 158th Street E, Bradenton, FL 34212.
Email 320 158th Street E, Bradenton, FL 34212
Thank you for your inquiry! As a thank you, we have a Special Mortgage Offer for You.
We would like to provide you a free, no-obligation, home loan pre-approval review.