
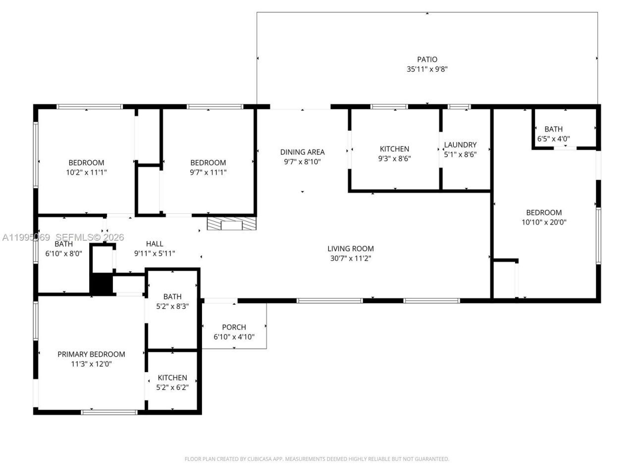
Excellent investment opportunity in the heart of Hialeah. This 4-bedroom, 3-bathroom single-family home includes 2 independent rooms with great income-producing potential. The property features spacious living areas, a functional layout, and a large backyard ideal for entertaining or future improvements. Conveniently located near shopping, dining, schools, and major highways. Ideal for investors or owner-occupants seeking additional rental flexibility in a high-demand area.
Courtesy of
Agency Name: Frank Taylor Real Estate Inc
Agency Phone: 305-503-3998
Agent Name: Frank Riera
Presented by
Agency Title: The Keyes Company
Agency Phone:
Request Info
Send an email with a link to
2330 W 6th Ct , Hialeah, FL 33010.
Email 2330 W 6th Ct , Hialeah, FL 33010
Thank you for your inquiry! As a thank you, we have a Special Mortgage Offer for You.
We would like to provide you a free, no-obligation, home loan pre-approval review.