
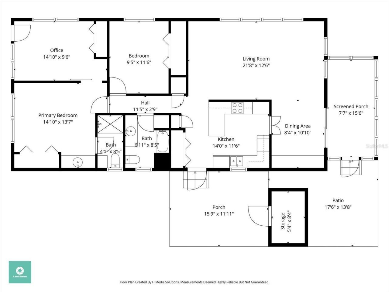
Welcome to waterfront living in Tropic Isles, a 55+ resident owned, waterfront community! This beautifully maintained 3-bedroom, 2-bath home offers the perfect blend of comfort, style, and coastal charm. Fall in love with the screened lanai and private backyard providing the ideal space to relax or entertain while taking in serene water views and extend the enjoyment outdoors. Boating enthusiasts will appreciate the 9,000 lb. boat lift (2015) and dock, offering direct, bridge-free access to the ...Welcome to waterfront living in Tropic Isles, a 55+ resident owned, waterfront community! This beautifully maintained 3-bedroom, 2-bath home offers the perfect blend of comfort, style, and coastal charm. Fall in love with the screened lanai and private backyard providing the ideal space to relax or entertain while taking in serene water views and extend the enjoyment outdoors. Boating enthusiasts will appreciate the 9,000 lb. boat lift (2015) and dock, offering direct, bridge-free access to the Gulf of Mexico, Tampa Bay, Terra Ceia Bay, and the Manatee River-your gateway to endless water adventures. Enjoy the fully remodeled amenities designed for an active lifestyle. Enjoy a temperature-controlled pool and spa, shuffleboard courts, a library, and multiple community rooms for social gatherings. The onsite marina offers a boat launch, fuel station, bait shop, and snacks-everything you need to enjoy life on the water. Located just minutes from beautiful Gulf beaches, Lakewood Ranch, Ellenton Outlets, and UTC Mall, this home puts convenience and recreation at your fingertips. Experience the ultimate Florida lifestyle-right at home in Tropic Isles!
View MoreCourtesy of
Agency Name: KELLER WILLIAMS ON THE WATER
Agency Contact: 941-729-7400
Agent Name: Carmen Garcia Urgelles
Presented by
Agency Title: The Keyes Company
Agency Phone:
Request Info
Send an email with a link to
220 Bimini Drive, Palmetto, FL 34221.
Email 220 Bimini Drive, Palmetto, FL 34221
Thank you for your inquiry! As a thank you, we have a Special Mortgage Offer for You.
We would like to provide you a free, no-obligation, home loan pre-approval review.