
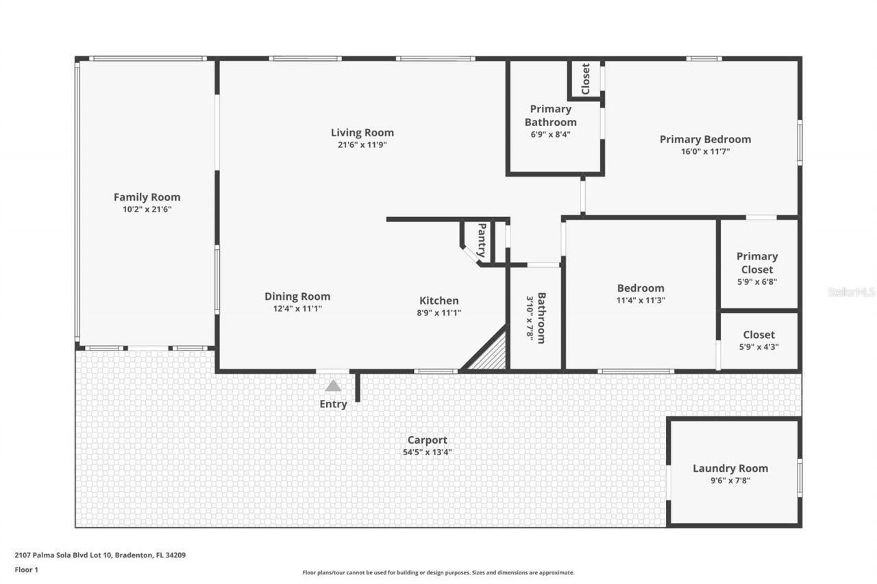
Welcome to Palma Sola Shores, a highly sought-after land-owned 55+ community just minutes from Anna Maria Island. This beautifully maintained, fully turnkey 2-bedroom, 2-bath home has been thoughtfully updated throughout and is truly move-in ready. ]Step inside to a bright, inviting interior featuring updated flooring, lighting, and ceiling fans (2019). The fully remodeled kitchen (2019) is both stylish and functional, offering new cabinetry, countertops, appliances, sink, disposal, updated plum...Welcome to Palma Sola Shores, a highly sought-after land-owned 55+ community just minutes from Anna Maria Island. This beautifully maintained, fully turnkey 2-bedroom, 2-bath home has been thoughtfully updated throughout and is truly move-in ready. ]Step inside to a bright, inviting interior featuring updated flooring, lighting, and ceiling fans (2019). The fully remodeled kitchen (2019) is both stylish and functional, offering new cabinetry, countertops, appliances, sink, disposal, updated plumbing and electrical, and under-cabinet lighting, perfect for everyday living or entertaining. Both bathrooms were completely renovated in 2019 with updated plumbing, electrical, lighting, ventilation, and new showers, creating a fresh, cohesive feel throughout the home. The spacious sunroom adds valuable living space and was upgraded with new windows, door, insulated ceiling panels, and flooring (2019), along with a new window A/C unit (2025) making it the perfect spot to relax or host guests year-round. Major improvements provide peace of mind, including a new roof (2022) with a 20-year warranty, vapor barrier (2024), hot water heater (2021), and A/C (2019). The home was also termite-tented in October 2025. ]Outside, enjoy a decorative polyaspartic chip-coated driveway (2022), updated curbing (2021), outdoor shower (2024), and a storage shed with a brand-new Maytag washer and dryer (2025). Offered fully furnished; including an adjustable bed in the primary suite and a Tempur-Pedic sleeper sofa-this home is ready for immediate enjoyment. Residents of Palma Sola Shores enjoy a heated pool, clubhouse, waterfront dock, and kayak launch, all with a low $300/month HOA. Located close to Anna Maria Island beaches, Robinson Preserve, shopping, dining, medical facilities, and SRQ Airport, this property offers the ideal blend of coastal living, modern updates, and low-maintenance lifestyle. Just bring your suitcase and start enjoying it from day one.
View MoreCourtesy of
Agency Name: PREFERRED SHORE LLC
Agency Contact: 941-999-1179
Agent Name: Jomarie Alicea
Presented by
Agency Title: The Keyes Company
Agency Phone:
Request Info
Send an email with a link to
2107 Palma Sola Boulevard, Unit 10, Bradenton, FL 34209.
Email 2107 Palma Sola Boulevard, Unit 10, Bradenton, FL 34209
Thank you for your inquiry! As a thank you, we have a Special Mortgage Offer for You.
We would like to provide you a free, no-obligation, home loan pre-approval review.