
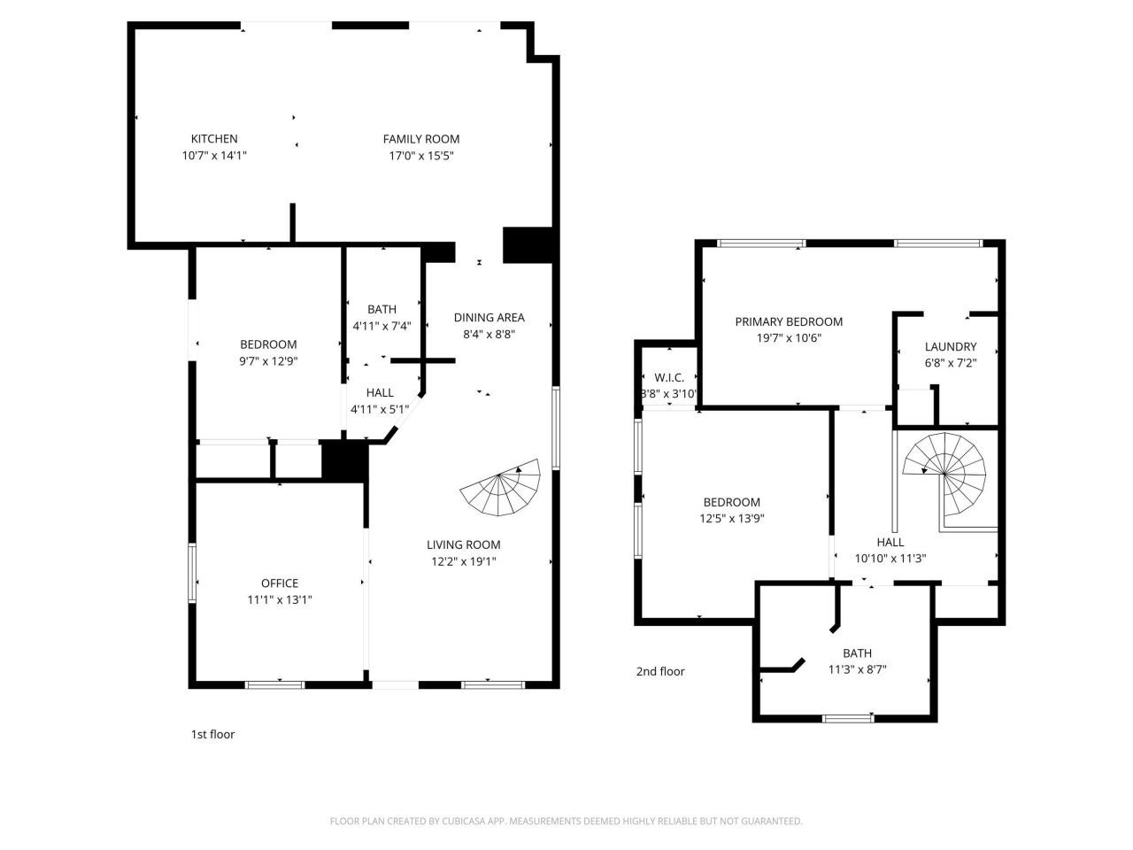
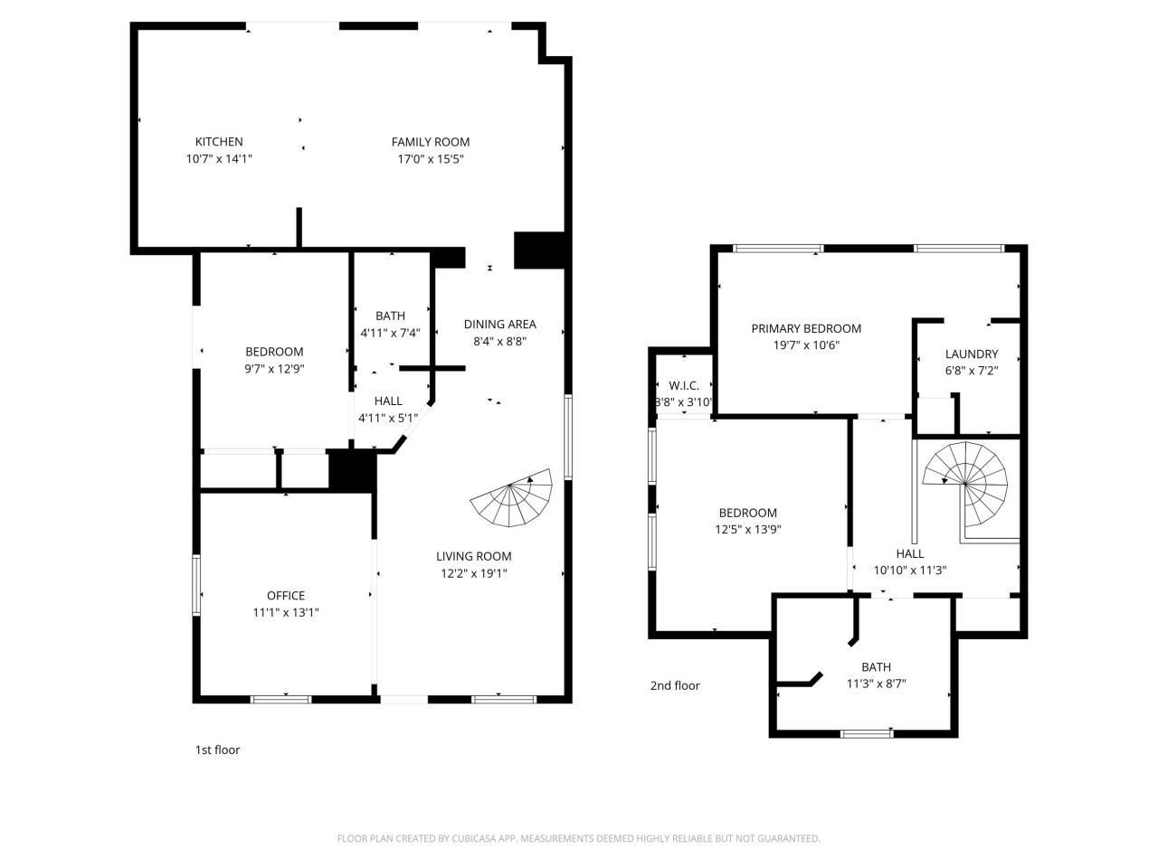
Spacious and well-designed 3-bedroom, 2-bathroom home offering a flexible and functional floor plan perfect for today's lifestyle. The main level features an open kitchen with center island, ample cabinetry, and stainless appliances, flowing seamlessly into a bright family room. A separate living room and dedicated office provide additional space for work, relaxation, or entertaining.The first floor includes a convenient guest bedroom and full bathroom, ideal for visitors or single-level living....Spacious and well-designed 3-bedroom, 2-bathroom home offering a flexible and functional floor plan perfect for today's lifestyle. The main level features an open kitchen with center island, ample cabinetry, and stainless appliances, flowing seamlessly into a bright family room. A separate living room and dedicated office provide additional space for work, relaxation, or entertaining.The first floor includes a convenient guest bedroom and full bathroom, ideal for visitors or single-level living. Upstairs, you'll find a private primary suite with en-suite bathroom and walk-in closet, along with a second guest bedroom--creating excellent separation and privacy.Step outside to your own tropical retreat featuring a covered tiki-style deck and private backyard, perfect for outdoor dining and year-round entertaining.With its versatile layout, multiple living areas, and inviting outdoor space, this home is well suited for families, professionals, or those seeking strong rental potential. Conveniently located near local amenities and offering great value in today's market.
View MoreCourtesy of
Agency Name: Key West Vacation Properties & Realty, LLC (KW)
Agency Phone: (305) 296-6667
Agent Name: Jaime M Caballero
Presented by
Agency Title: The Keyes Company
Agency Phone:
Request Info
Send an email with a link to
2012 Roosevelt Drive, Key West, FL 33040.
Email 2012 Roosevelt Drive, Key West, FL 33040
Thank you for your inquiry! As a thank you, we have a Special Mortgage Offer for You.
We would like to provide you a free, no-obligation, home loan pre-approval review.