
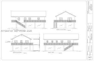
ACTIVE PERMIT! OCEANSIDE Upper Keys Active Permit for a 3/2 single-family home with a large balcony overlooking the ocean. The plans for this home include an elevated concrete block structure with pilings ALREADY in place/ building plans can be modified. It is surrounded by a protected hardwood hammock that provides privacy for this property. Oceanfront Harry Harris Park is right down the street. The park has a community BOAT RAMP for ocean access, beach, playground, basketball court, and softba...ACTIVE PERMIT! OCEANSIDE Upper Keys Active Permit for a 3/2 single-family home with a large balcony overlooking the ocean. The plans for this home include an elevated concrete block structure with pilings ALREADY in place/ building plans can be modified. It is surrounded by a protected hardwood hammock that provides privacy for this property. Oceanfront Harry Harris Park is right down the street. The park has a community BOAT RAMP for ocean access, beach, playground, basketball court, and softball fields for Fun in the Sun. The vacant lot adjacent to this listing is also available mls#618068 All offers considered. Please contact the listing agent.
View MoreCourtesy of
Agency Name: Langley Knight Gardner Islamorada
Agency Phone: 305-664-4444
Agent Name: Benton Langley
Presented by
Agency Title: The Keyes Company
Agency Phone:
Request Info
Send an email with a link to
186 Dove Creek Dr , Key Largo, FL 33070.
Email 186 Dove Creek Dr , Key Largo, FL 33070
Thank you for your inquiry! As a thank you, we have a Special Mortgage Offer for You.
We would like to provide you a free, no-obligation, home loan pre-approval review.