
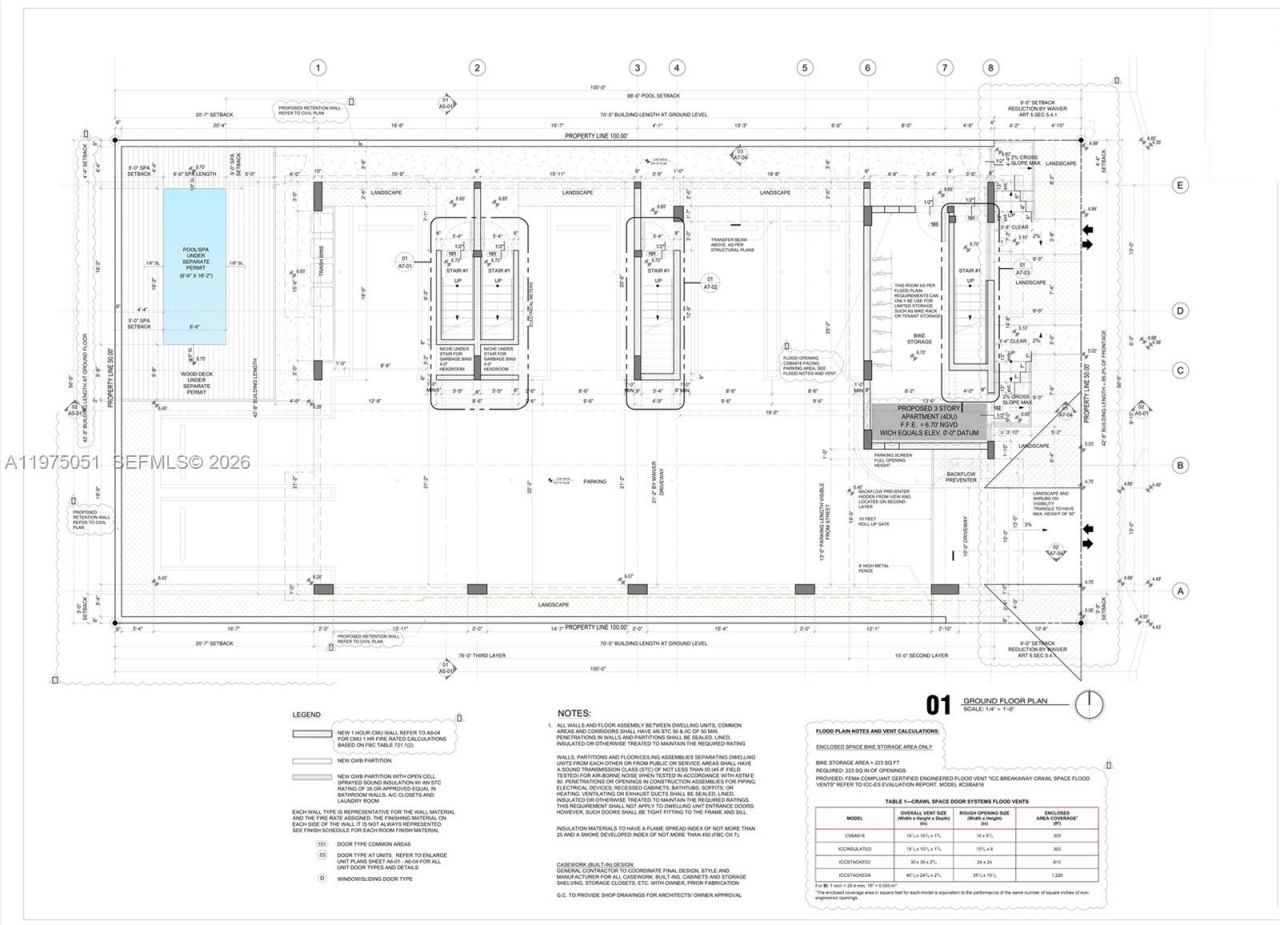
Exceptional opportunity to acquire a 5,000 SF development site in Little Havana with architectural plans for four (4) three-story townhomes. Each unit is designed as a 3 Bed / 3 Bath layout averaging approximately 1,500 SF of A/C space, with dedicated parking (6 spaces total).Plans maximize T4-L zoning density and include a thoughtful site design featuring pool, deck, landscaped areas, and bike storage.Strategically located just off Flagler Street, approximately 3 minutes from Brickell, 5 minute...Exceptional opportunity to acquire a 5,000 SF development site in Little Havana with architectural plans for four (4) three-story townhomes. Each unit is designed as a 3 Bed / 3 Bath layout averaging approximately 1,500 SF of A/C space, with dedicated parking (6 spaces total).Plans maximize T4-L zoning density and include a thoughtful site design featuring pool, deck, landscaped areas, and bike storage.Strategically located just off Flagler Street, approximately 3 minutes from Brickell, 5 minutes from I-95, and with immediate access to the 836 Dolphin Expressway. The property is also just a few blocks from LoanDepot Park (Marlins Stadium), placing it within one of Miamis most connected and rapidly evolving urban neighborhoods.Little Havana continues to see strong residential demand due to its proximity to Brickell, Downtown, and major transit corridors ? making this an ideal development opportunity for sell-out or long-term hold strategy.Rare opportunity to step into a near shovel-ready project in a prime infill location.Rare opportunity to step into a near shovel-ready project.
View MoreCourtesy of
Agency Name: Fausto Commercial Realty Consultants Inc
Agency Phone: 786-748-7373
Agent Name: Mauricio Villasuso
Presented by
Agency Title: The Keyes Company
Agency Phone:
Request Info
Send an email with a link to
136 SW 11th Ave, Miami, FL 33130.
Email 136 SW 11th Ave, Miami, FL 33130
Thank you for your inquiry! As a thank you, we have a Special Mortgage Offer for You.
We would like to provide you a free, no-obligation, home loan pre-approval review.