
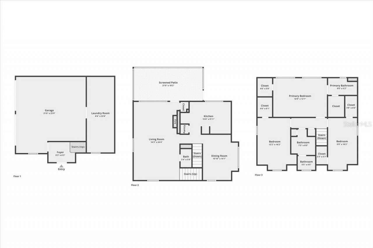
This unique elevated, waterview property backs up to a tranquil 1.6 acre waterfront private park with a boat ramp- (Partial ownership TRANSFERS to the buyer of this property). Enjoy fishing, swimming, or taking your kayak or jet skis out on the water. On the first floor you will find an oversized garage with storage space with an elevated laundry room, half bath and a lovely loft area. You will find the main living area on the second floor with the kitchen, dining room, living room with fireplac...This unique elevated, waterview property backs up to a tranquil 1.6 acre waterfront private park with a boat ramp- (Partial ownership TRANSFERS to the buyer of this property). Enjoy fishing, swimming, or taking your kayak or jet skis out on the water. On the first floor you will find an oversized garage with storage space with an elevated laundry room, half bath and a lovely loft area. You will find the main living area on the second floor with the kitchen, dining room, living room with fireplace, and a nicepowder room. A generously sized screened porch and an open deck share the awesome waterview. On the top floor you will find the primary bedroom, primary bath, the two guest bedrooms that share a hall bath. This property has a fenced in yard perfect to keep your fur babies in and allowing easy access to your waterfront park. Tons of parking for all of your toys and boats. The Riverwalk extension is walking distance from this home and adds to your active Florida lifestyle. Walk or bike ride to your favorite restaurants along the Bradenton Riverwalk. Perfect for kayakers, SUP, and jet skis too. No deed restrictions here! East of Historic River District & popular Downtown Riverwalk. Short bicycle or car ride to the farmers market, restaurants, park, library, public art, shopping, The South Florida Museum, Manatee Historical Village Park, Art Center Manatee, Local Award Winning Breweries, Manatee Performing Arts Center, or Lecom Baseball Park. Short distance away from the best GULF beaches, Sarasota Airport and attractions, St Pete 25-minutes away, Tampa Airport 45 minutes, Great centrally located home! Buyer to verify measurements.
View MoreCourtesy of
Agency Name: FOREVER FLORIDA REAL ESTATE
Agency Contact: 727-440-6444
Agent Name: Delia Davidson
Presented by
Agency Title: The Keyes Company
Agency Phone:
Request Info
Send an email with a link to
103 17th Street E, Bradenton, FL 34208.
Email 103 17th Street E, Bradenton, FL 34208
Thank you for your inquiry! As a thank you, we have a Special Mortgage Offer for You.
We would like to provide you a free, no-obligation, home loan pre-approval review.