
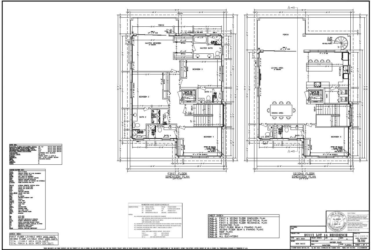
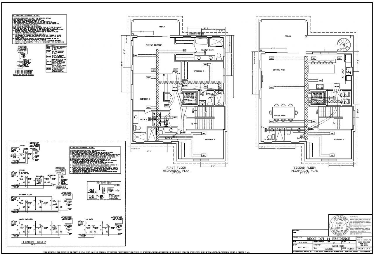
Premium Waterfront Lot includes a building right/TBR - READY TO BUILD no waiting, INCLUDES 2 SETS OF HOUSE PLANS, The VACANT LAND PRICE is 679,000. Alternatively, you can choose to have the Seller coordinate the New Construction Project already planned to begin in 2026 at a completed price of 2,795,000. Breathtaking Views with Deep Water Protected 50 Ft Dockage! Discover your dream home in Marathon, Florida, offering 3,200 sq. ft. of luxurious living space. This 5-bedroom, 5-bathroom masterpiece...Premium Waterfront Lot includes a building right/TBR - READY TO BUILD no waiting, INCLUDES 2 SETS OF HOUSE PLANS, The VACANT LAND PRICE is 679,000. Alternatively, you can choose to have the Seller coordinate the New Construction Project already planned to begin in 2026 at a completed price of 2,795,000. Breathtaking Views with Deep Water Protected 50 Ft Dockage! Discover your dream home in Marathon, Florida, offering 3,200 sq. ft. of luxurious living space. This 5-bedroom, 5-bathroom masterpiece features a private pool, elevator, and a stunning rooftop observation deck-perfect for enjoying epic sunsets over Boot Key Harbor. Work with Keys Dream Properties to customize your finishes, including interior and exterior colors, tile, quartz countertops, lighting, and plumbing fixtures. Tailor every detail to your taste and make this house truly your own. Located in the heart of Marathon, you'll enjoy easy access to endless shopping and dining options, from fine dining to casual eats. With a protected deep-water dock, you're minutes from both the Atlantic and Gulf, offering World-Class Fishing, Snorkeling-Diving, and Boating adventures. For those breezy days, Boot Key Harbor provides calm waters for social boating, complete with on-the-water dining and cocktails. Best of all, there are NO HOA FEES, and the property allows 7-day rentals, giving you the flexibility to offset your investment through vacation rentals in Marathon's thriving market. This home's combination of luxury, customization, and location offers the best of the Florida Keys Lifestyle. Construction scheduled to begin in 2026. Don't miss this rare opportunity to design and own your slice of paradise. Contact us today!
View MoreCourtesy of
Agency Name: Water Vista Realty, Inc.
Agency Phone: (305) 396-7844
Agent Name: Dan Cloud
Presented by
Agency Title: The Keyes Company
Agency Phone:
Request Info
Send an email with a link to
1021 27th Street Ocean, Marathon, FL 33050.
Email 1021 27th Street Ocean, Marathon, FL 33050
Thank you for your inquiry! As a thank you, we have a Special Mortgage Offer for You.
We would like to provide you a free, no-obligation, home loan pre-approval review.